大阪・堺の不動産買取は
ラックハウジング
072-225-0029
営業時間 9:00-18:00[水曜定休]
Reasons
選ばれる3つの理由
Process
不動産売却の流れ
FAQ
よくある質問
News
お知らせ
Contact
お問い合わせ
【新規物件更新中】
at home
物件詳細
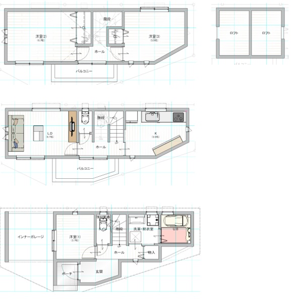
2,700万円
物件ID:22867
建物名:神野町1丁新築一戸
住所 :〒593-8308 堺市 神野町1丁
築年月:2025/03
管理費:—
修繕積立金:—
お問い合わせは
こちら
画像ギャラリー
← 一覧に戻る